No.1818
自宅ワークスペース新設!アジアモダンで安らぎの空間
- デザイン
- コンバージョン(用途変更)
- 家全体
- マンション
- 100~300万円未満
- 神奈川県
神奈川県横浜市金沢区
総費用267万円
リフォームの概要
| 家族構成 | ご夫婦 | 年齢 | 20代 | ||
|---|---|---|---|---|---|
| 築年数 | 20 | 費用 | 267万円 | ||
| 間取り | 3LDK⇒2LDK | ||||
| 目的 | 和室の撤去、内装の一新 | ||||
| リフォーム箇所 | リビング、洋室、キッチン開口部 | ||||
| 新しくした設備 | |||||
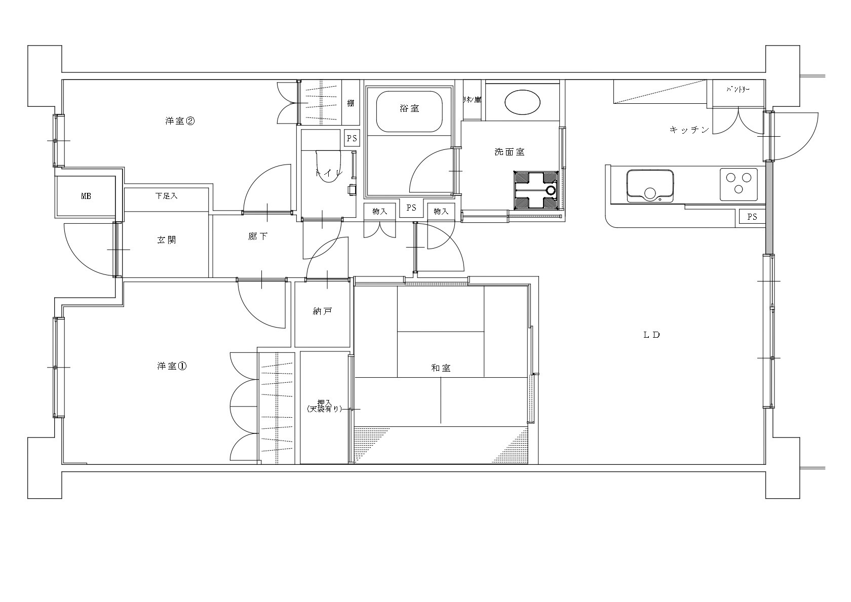
リフォームの図面
リフォームのポイント
新居として中古物件をご購入されたT様。生活スタイルに合わせた間取り変更と「デザインやテイストにこだわった空間にしたい」とのご希望がございました。
提案したプラン
【LDK】
・リビングダイニング
使用頻度が少ないと思われる和室や収納スペースを撤去して洋室化。その一部を取り込むことでリビングスペースを広げました。加えてダイニング側には木目調の下がり天井にすることで空間に温かみと高級感を与えてくれます。下がり天井と同様に床を高級感のある木目と上品な色合いが魅力的なチェリー色をセレクトし、「アジアンモダン」なテイストに仕上げました。
・キッチン
対面キッチンの開口部が狭く閉鎖的なことから「明るいキッチンにしたい」とのご希望に添え、キッチンとリビングとの間の壁と吊戸を撤去することで見晴らしの良いキッチンを実現しています。
【洋室】
元和室の納戸や押入収納を解体し、ワークスペースとしてコンパクトな洋室を新設しました。壁の一部には色味の優しい緑のアクセントクロスをご提案し、さらに室内窓を設置したことで閉鎖感もなく、快適にお過ごしいただける空間となっています。
リフォームの費用
| 工期 | 2ヶ月 | リフォーム面積 | 75㎡ |
|---|---|---|---|
| 費用概算 |
共通工事 20万円 解体工事 32万円 木工事 40万円 建具表具サッシ工事 25万円 住宅設備機器 3万円 内装工事 80万円 電気工事 37万円 キッチン工事 30万円 |
||
| 総額 | 267万円 | ||



